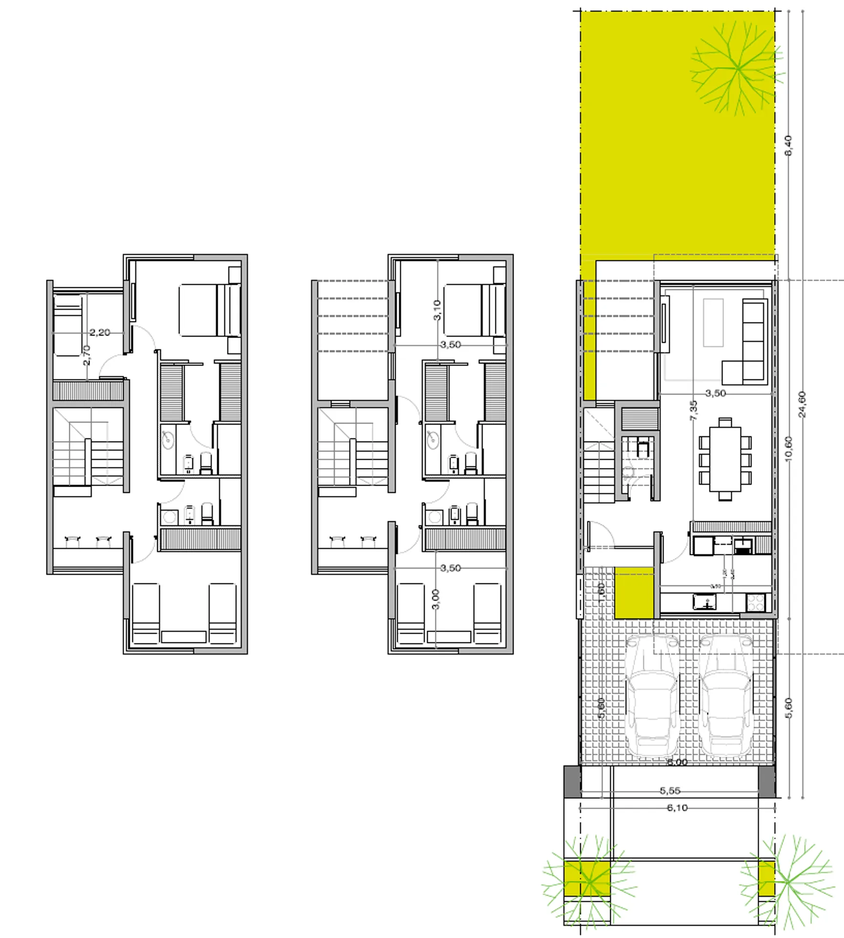
DÚPLEX TORREÓN casas_duplex_torreon_01casas_duplex_torreon_02casas_duplex_torreon_03casas_duplex_torreon_04